Terreno edificable en Cala Llenya

North / Cala Llenya

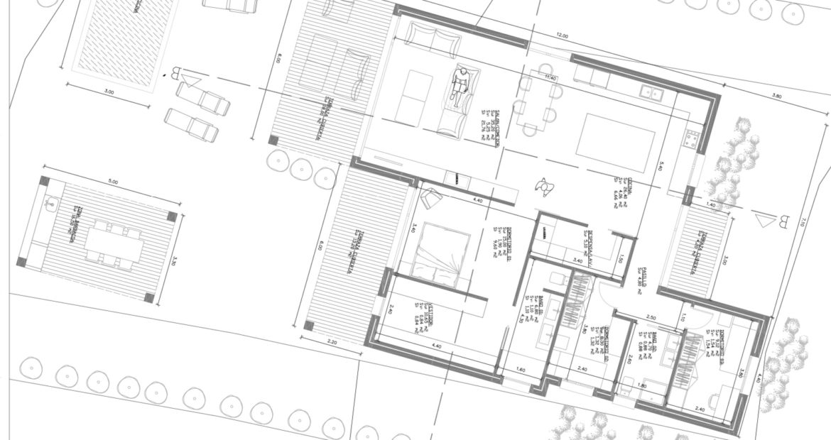
Se adquirirá un terreno edificable en Cala Llenya, catalogado como «URBANO» por la normativa de edificación aplicable.

La superficie total del terreno es de 1.650 m2.  De acuerdo con la normativa de edificación, por lo tanto, sería posible construir un edificio residencial de dos pisos con 495 m2 de espacio habitable más una piscina. Existe un proyecto para un edificio de un piso que ya ha sido reconocido como factible por las autoridades de construcción responsables, y se espera el permiso de construcción final.

Ubicación de la propiedad